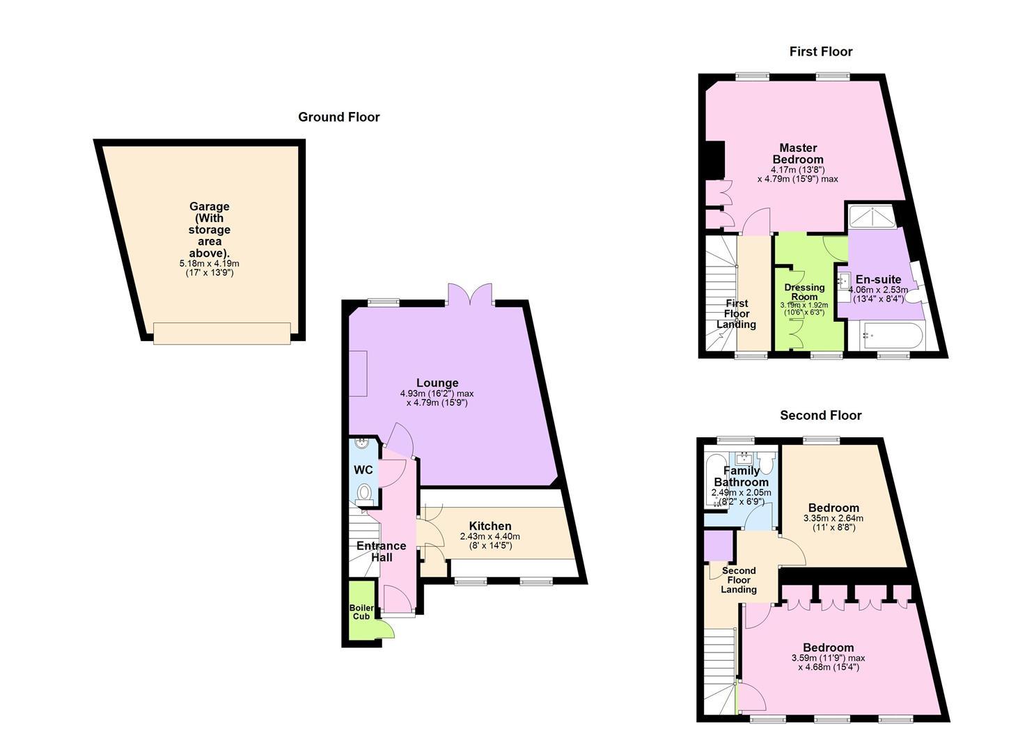
St. Nicholas Church Street, Warwick
Full Details
Approach
The development is approached over a block paviour private driveway off St Nicholas Church Street through automated security gates to the inner courtyard. The garage is located in the top right-hand corner, which also has parking at the front of it. There is a separate parking space located next to the front door of the property with a path to the covered porch with courtesy lighting.
Entrance Hall
Wall-mounted digital thermostat control point, radiator, entryphone system, cornice to ceiling, mains powered smoke alarm, recessed downlighters, under stairs storage cupboards, Amtico wood effect floor, staircase rising to First Floor. Doors to:
Cloakroom
White suite comprising low level WC, vanity wash hand basin with complementary tiled splashbacks and storage below, extractor fan, downlighters and radiator.
Kitchen 2.43m x 4.40m
Attractive range of modern base and wall units, Grey sparkle Quartz worktops and matching upstands, an inset Franke sink with mixer tap. Built-in electric oven and touch control ceramic hob with illuminated extractor unit over, eye-level integrated appliances include microwave, fridge/freezer, dishwasher and washing machine. Tall storage unit, pullout bin, recessed downlighters, kickheater, Amtico floor and two sealed unit double-glazed sash windows to front aspect.
Living/Dining Room 4.93m x 4.79m
Attractive fireplace with inset coal effect gas fire, space for dining table and chairs, cornice to ceiling, recessed downlighters, radiator, two uplighters, sealed unit double-glazed sash window to the rear aspect and French doors provide access to the southerly facing garden.
First Floor Landing
Radiator, cornice to ceiling, mains powered smoke alarm, recessed downlighters, sealed unit double-glazed sash window to front aspect. Staircase rising to the second floor. Door to:
Master Bedroom 4.17m x 4.79m
Cornice to ceiling, recessed downlighters, radiator, built-in full height double door and single door wardrobes, additional double door and single door storage cupboards with display areas over, two sealed unit double-glazed windows to rear aspect with views of Warwick Castle. Opening to:
Dressing Room 3.19m x 1.92m
Recessed downlighters, built-in full height wardrobes which provide ample hanging rail and storage space, sealed unit double-glazed sash window to front aspect. Door to:
En-Suite 4.06m x 2.53m
Four-piece white suite with chrome fittings, comprising a WC with a concealed push-button cistern, a bath with a mixer tap and shower attachment, and a vanity wash hand basin with white high-gloss soft-close drawers below. Wide mains fed shower enclosure with fixed drench shower head and glass shower door and side screen. Central heating towel rail, complementary tiled splashbacks, extractor fan, downlighters, tiled floor and a sealed unit double-glazed sash window to the front aspect.
Second Floor Landing
Recessed downlighters, mains powered smoke alarm, built-in Airing Cupboard with radiator and shelving, access to void loft, Doors to:
Bedroom Two 3.59m x 4.68m
Recessed downlighters, radiator, three sealed unit double-glazed sash windows. Built in range of full-height wardrobes extending almost the width of one wall, providing ample hanging rail and storage space. Additional storage cupboard with slatted shelving.
Family Bathroom 2.49m x 2.05m
Modern white suite with chrome fittings comprising bath with shower over and glass side screen, wash hand basin with storage below, WC with concealed cistern, complementary tiled splashbacks, recessed storage shelving, central heating towel rail, extractor fan, downlighters, tiled floor and a sealed unit double-glazed sash window.
Bedroom Three 3.35m x 2.64m
Built in full height twin double door wardrobes, radiator, recessed downlighters and a sealed unit double glazed sash window with views over the rear elevation.
Outside
Gravelled fore garden and outside storage cupboard with power and lighting, housing the wall-hung Worcester Bosch boiler and utility meters.
Landscaped Garden
Which is terraced with various seating areas and enjoys a southerly aspect, with an outside water tap, courtesy lighting, low-maintenance artificial lawn, and benefits from a private rear security gate with shared access onto Gerrard Street.
Garage 5.18m x 4.19m
Having a remote control up and over door, power and light, fitted shelving and access to roof storage.
Tenure
The Property is Freehold.
Service Charge
The annual service charge is currently £1704.00 and is split into two payments of £852.00 on 1 April and 1 October. The Earls of Warwick Management Company covers window cleaning, gardening, cleaning of communal courtyard and driveway, gutter clearing, service gates/railings, buildings insurance, maintenance, exterior decorating and shared outside water tap.
Services
Mobile coverage
EE
Vodafone
Three
O2
Broadband
Basic
18 Mbps
Superfast
295 Mbps
Satellite / Fibre TV Availability
BT
Sky
Fittings and Fixtures
All fittings and fixtures as mentioned in our sales particulars are included; all others are expressly excluded.

