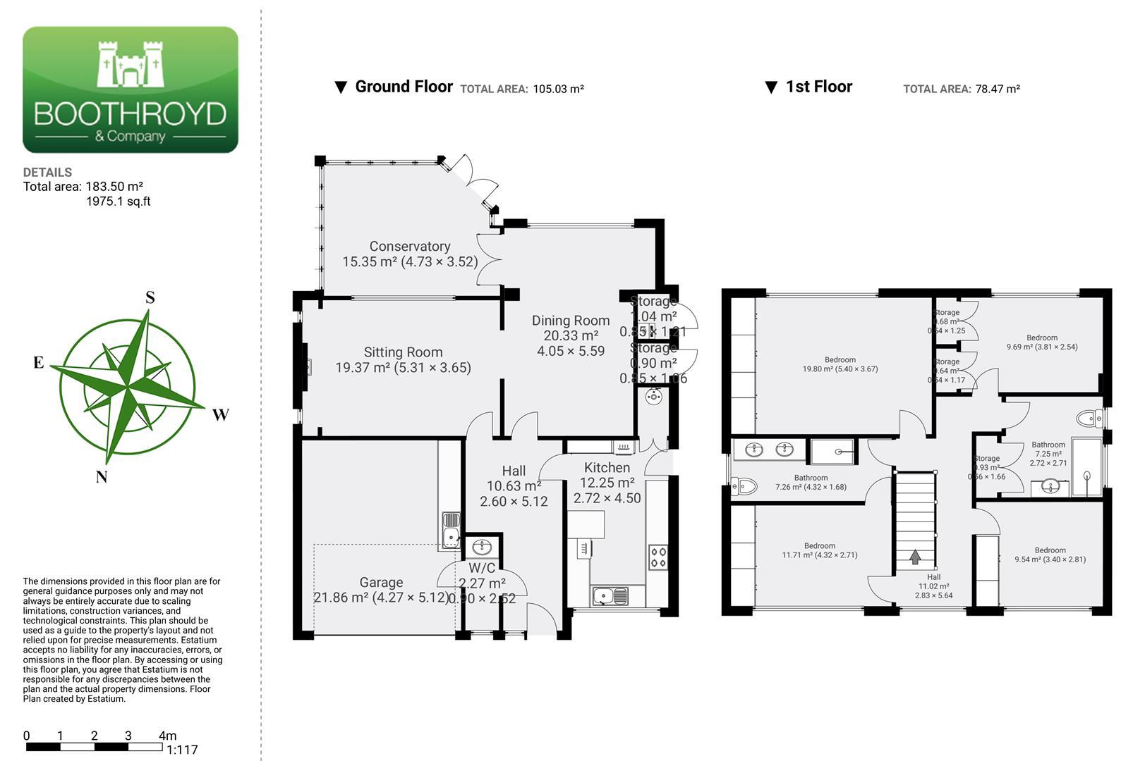
Ferndale Drive, Kenilworth
Full Details
Approach
Open porch with tiled steps, hardwood-panelled door featuring a full-height opaque inset, and a ceiling lantern.
Hall 2.60m x 5.12m
With a radiator, a ceiling light with a centre rose, stairs rising to the first floor, and a door to the
W.C.
Featuring a low-level w.c., a dado rail, and an opaque window to the front, this space includes an electric panel heater, a vanity wash hand basin with storage cupboard below, and round edge work surfaces. Additionally, there is an alarm control pad and a door leading to the garage.
Kitchen 2.72m x 4.50m
The kitchen is comprehensively fitted with a range of matching beech-fronted base and wall units, featuring 30mm granite work surfaces. It includes a double bowl sink with a chrome mixer tap and integrated appliances, such as a Neff oven, a larder undercounter fridge, a Neff microwave, and a Neff five-burner electric halogen hob with an extractor above. The kitchen also features a peninsula breakfast bar, a radiator, a walk-in pantry cupboard, ceiling downlighters, a side door, and a double-glazed window at the front, along with under-pelmet lighting.
Dining Room 4.05m x 5.59m
The room features engineered oak flooring, a ceiling light complete with a centre rose, and elegant coving. There is ample space for a large dining table, along with a striking mock Georgian arch flanked by matching pillars. Additionally, the room includes a radiator and window facing the front, a bespoke built-in drinks cabinet, and a picture light. Double doors lead to the conservatory, enhancing the area with further architectural detail provided by the feature arch and pillars.
Sitting Room 5.31m x 3.65m
The room features engineered oak flooring, a radiator, and a window that overlooks the conservatory. It is illuminated by a ceiling light with a central rose. There is also a door leading to the hall and an impressive inglenook fireplace with a stone surround, complete with a gas fire point. On either side of the inglenook, there are two matching glazed and leaded windows, and a TV point is also provided.
Conservatory 4.73m x 3.52m
Features ceramic tiled flooring, an attractive hybrid wood conservatory with a pitched glass roof and an automatic Velux window. It includes two electric heaters, fitted blinds, French doors leading to the rear garden, and two wall lights.
First Floor Landing
With a wooden-framed window at the front, there is a matching white wood bannister rail and spindles, a ceiling light, coving, and a door leading to...
Double Bedroom One 5.40m x 3.67m
The room features a window at the rear, a radiator, and coving along the ceiling. It is illuminated by a ceiling light and a range of recessed LED downlighters. One wall is fitted with matching built-in wardrobes that include hanging space, shelving, and fitted drawers. Additionally, there is a built-in corner dressing table with drawers and cupboards, along with matching bedside tables.
Double Bedroom Two 4.32m x 2.71m
Featuring a window at the front, a radiator, a ceiling light, and coving. This room has built-in wardrobes along one wall, complete with hanging space and shelving, as well as matching bedside tables. There is also a door that leads to the bathroom.
Bathroom 4.32m x 1.68m
Refitted three-piece white suite featuring a low-level W.C., twin vanity wash basins with cupboards below, and a large walk-in shower enclosure equipped with a mains-fed shower. The walls are ceramic tiled, and there is a glazed fitted shower screen. Additional features include a heated towel rail, black ceramic tiles on the floor, LED downlighters, and an opaque window on the side.
Double Bedroom Three 3.40m x 2.81m
Featuring a front window, a radiator, a built-in wardrobe, matching bedside tables, a ceiling light, and coving.
Double Bedroom Four 3.81m x 2.54
With a window at the rear, a radiator, a ceiling light, LED downlighters, and built-in double wardrobes along one wall with matching cupboards above.
Family Bathroom 3.40m x 2.81m
The room features a modern three-piece white suite, including a low-level WC and a vanity wash hand basin with a chrome mixer tap and a cupboard underneath. There is a large shower enclosure complete with a fitted glazed screen, a mains-fed shower, and a rain head shower. Additionally, there is a built-in double airing cupboard with slatted shelving, as well as a hot water cylinder with an immersion heater. A mirrored vanity mirror is also included, and there are two opaque windows on the side.
Double Intergral Garage 4.27m x 5.12m
The utility area features a sliding horizontal door at the front and includes a single stainless steel sink, along with useful base cupboards. There is space and plumbing available for a washing machine. Additionally, the area is equipped with wall units, wall-mounted smart electric and gas meters, an electric isolation unit, and a water meter. The ceiling is fitted with strip lights and is insulated.
Outside
The attractive rear garden is fully enclosed by perimeter fencing and features a manageable size. It includes a central lawn surrounded by well-stocked borders with magnolia and rhododendron shrubs. There is a block-paved patio and pathway, along with side access gates on both sides. Additionally, there is an integral garden store and a cupboard housing a new Baxi boiler that services the hot water and central heating.
Tenure
The property is freehold.
Services
All mains services are connected;
Mobile coverage
EE
Vodafone
Three
O2
Broadband
Basic
16 Mbps
Superfast
80 Mbps
Ultrafast
1000 Mbps
Satellite / Fibre TV Availability
BT
Sky
Virgin
Fixtures & Fittings
All fittings and fixtures as mentioned in our sales particulars are included; all others are expressly excluded.











































